



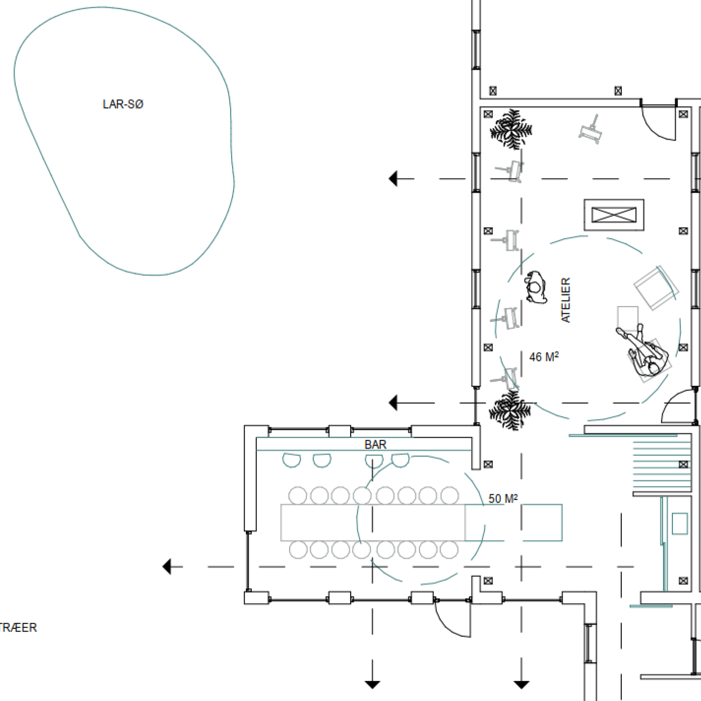
Indledende studie og undersøgelser på at skabe et atelier, ud af ruinerne fra et gammelt husmandssted på Sejerø
Projekt: Landskab
Lokation: Sejerø
Bygherre: Privat
Størrelse: ca. 700 m2
Status: I gang
Samarbejdspartnere:
Projekt team:
Morten Ellbrecht Olsen
Andreas Kjøller
Derrie Pearson
Photos: