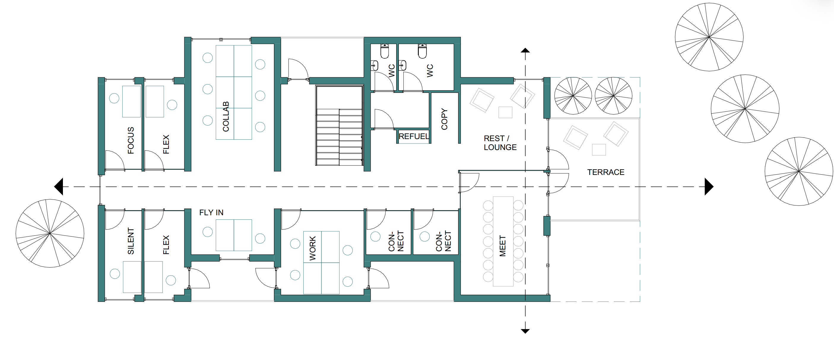
Vi har gennemført et studie af 400 kvadratmeter kontorpavilloner til Novonesis. Med en pragmatisk tilgang har vi arbejdet med modulære enheder i skala. Modulerne kan sammensættes i forskellige kompositioner, efter behov for opgave eller placering, og give et varieret udtryk i området.
Studiet har taget udgangspunkt i et modulært system, der kan tilpasses både i størrelse og funktioner, hvilket giver stor frihed til at skabe forskellige kompositioner. Denne fleksibilitet gør det muligt at designe kontorpavilloner, der kan vokse og ændre sig i takt med brugerens behov, samtidig med at det sikres, at modulerne kan leveres og opstilles hurtigt.



